Location
East Burke, Vermont
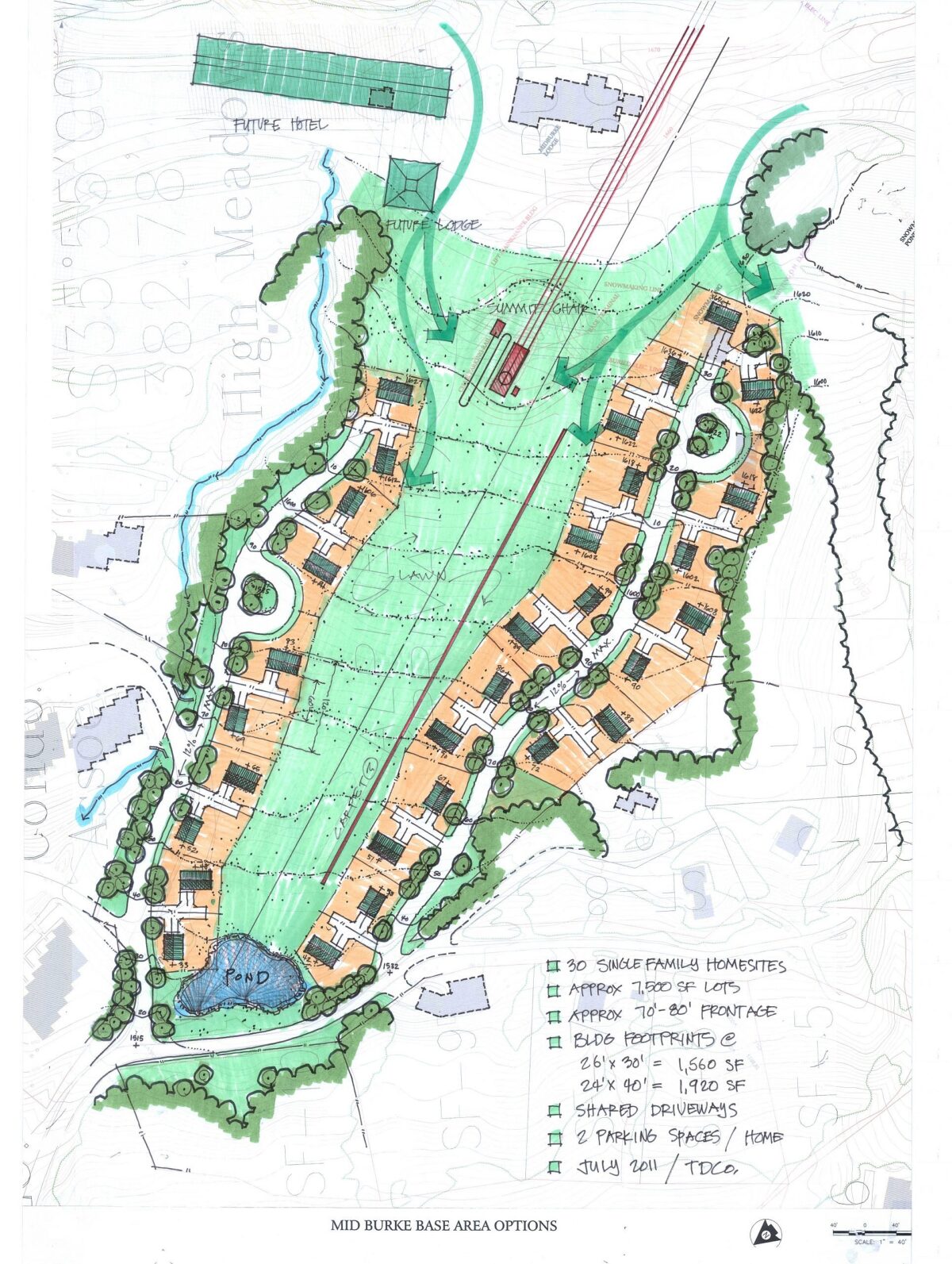
Design
A proposed slope side ski-in, ski-out community for Burke Mountain Ski Resort. The houses were modeled on New England farmhouses and barns and designed to be super insulated zero net energy ready.
East Burke, Vermont
Design
A proposed slope side ski-in, ski-out community for Burke Mountain Ski Resort. The houses were modeled on New England farmhouses and barns and designed to be super insulated zero net energy ready.